Park Chapel - Indiana
Greenfield, IN
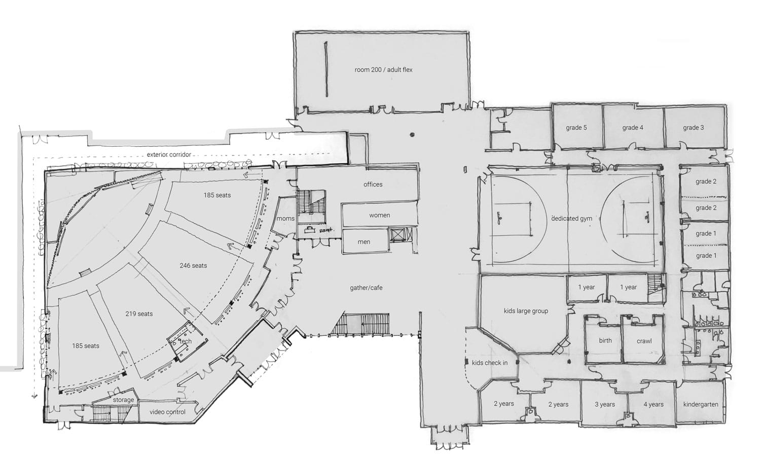
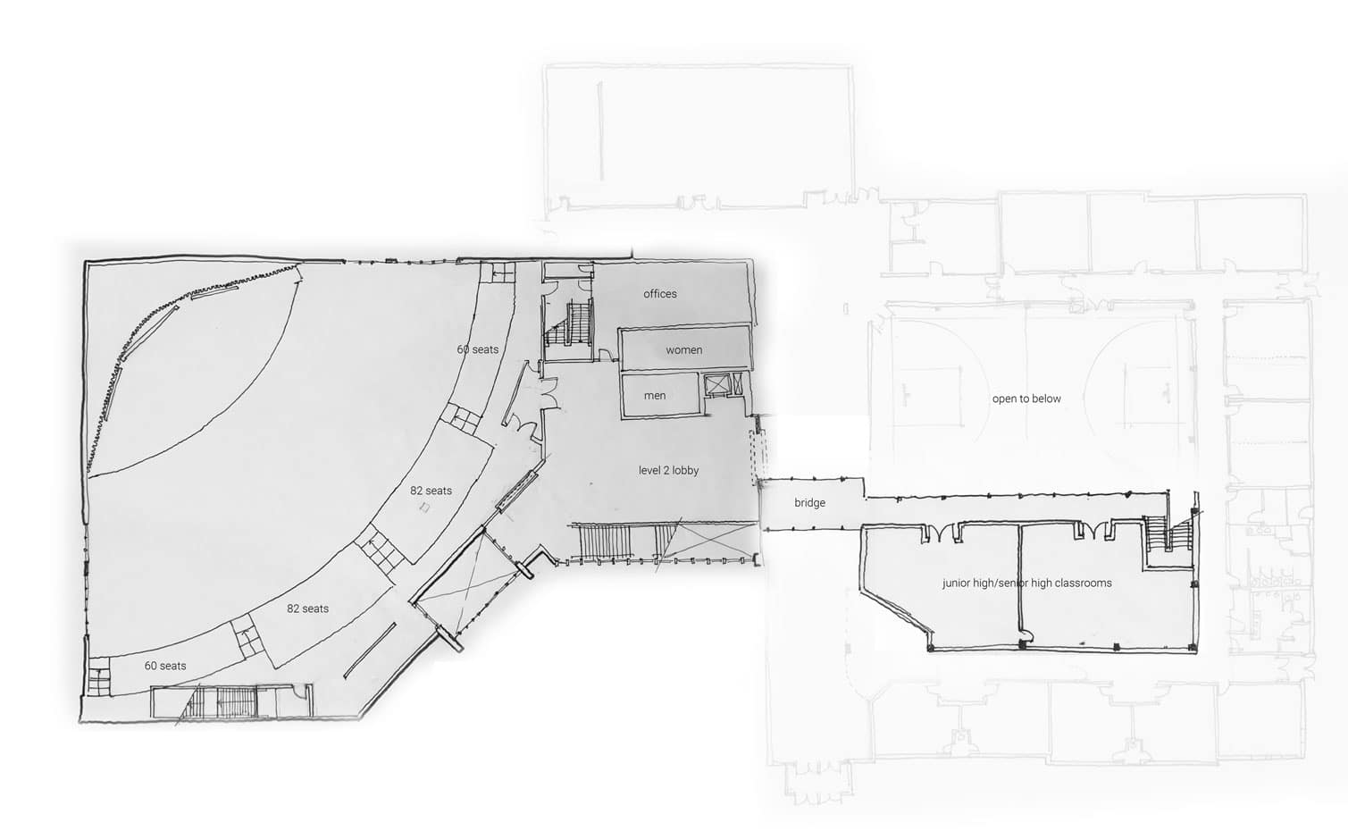
Park Chapel reached out to Risepointe because they were stuck with a plan to relocate that was way too expensive and they needed to explore if there was a creative way to expand and remodel on their current site and still reach their project goals. With a site that was nearly maximized but a LOT of square footage under roof that was under-utilized a solution was born to build a new, multi-story worship center and to convert their double-gym into some kids and youth space and to re-locate other ministries into more unified and centralized space. All together, this solution more than cut in half the project cost, and delivered more usable square footage for ministry moving forward.

Project Team
Risepointe /// Designer
Project Info
Future Project
61,537 S.F.
1244 seats
Program

